Presentación de la segunda fase del proyecto de ampliación del Museo de Bellas Artes de Asturias.
El pasado 22 de febrero, el Consejo de Patrimonio Cultural de Asturias dio el visto bueno al proyecto de ampliación del Museo de Bellas Artes que supondrá la construcción de un edificio de nueva planta anexo al palacio de Velarde, en la calle Santa Ana de Oviedo, para albergar servicios comunes para el equipamiento cultural y que conectará los dos inmuebles ya existentes.
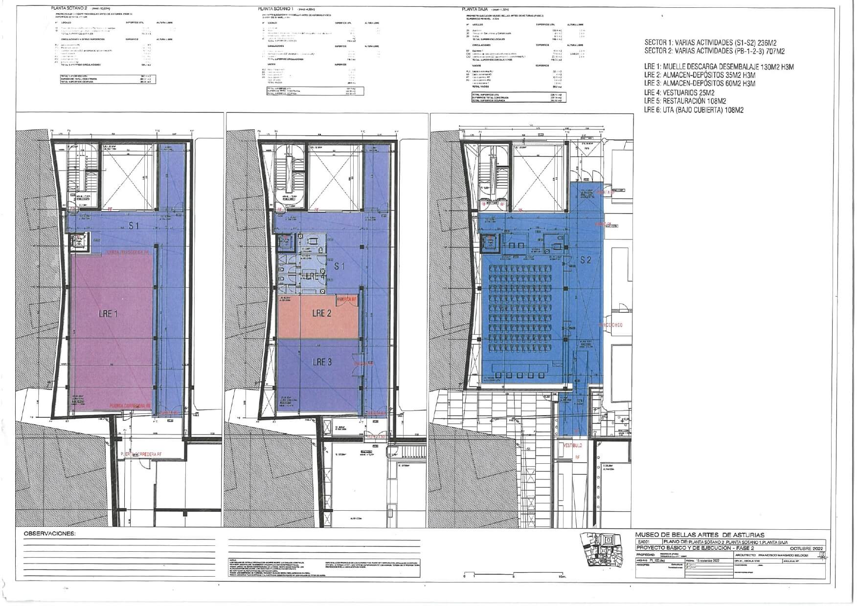
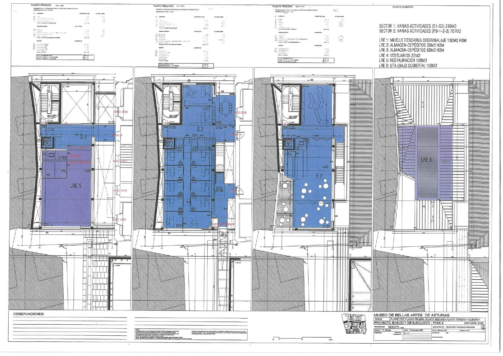
El nuevo inmueble contará con 1.838 metros cuadrados construidos que se distribuirán entre dos sótanos, planta baja y tres alturas. El edificio albergará un salón de actos en la planta baja, el taller de restauración en la primera, las oficinas y dependencias administrativas en el segundo piso y, finalmente, en la tercera planta, con vistas hacia la catedral, la tienda del museo y la cafetería. También dispondrá de dos plantas a modo de sótano, sótano -1 y sótano -2, que permitirán, por un lado, conectar este nuevo edificio con el sótano -2 de la Fase I y así hacer operativos los almacenes ubicados en ese lugar, así como, por otro, con el sótano -1 de la Fase I de la Ampliación, permitiendo poder introducir en la sala de exposiciones temporales de la Fase I obras de gran tamaño que hasta ahora no era posible.
El proyecto aprobado por el Consejo de Patrimonio ha sufrido variaciones respecto a su versión inicial, diseñada por el arquitecto Patxi Mangado, para adaptarse a las necesidades que la apertura y funcionamiento de la primera ampliación ha revelado a lo largo de estos años. Así, se ha cambiado la ubicación original de la tienda y la cafetería para trasladarlas a la última planta y aprovechar de ese modo las excepcionales vistas de la ciudad histórica. Además, se ha sustituido y ampliado el tamaño del montacargas previsto inicialmente, que ahora supera los 30 m² de superficie, para poder facilitar los trabajos de transporte de piezas y materiales, llegando este montacargas hasta el sótano -2 del nuevo edificio. Ambas modificaciones han supuesto una reordenación de usos y criterios estructurales en todas las plantas.
La realización de esta segunda fase del proyecto de ampliación será posible gracias a la inclusión del Museo de Bellas Artes de Asturias en el Plan Nacional Turístico Xacobeo 21-22, lanzado por el Gobierno de España, y que está financiado con los fondos europeos Next Generation.

Cortesía de El Comercio, 2023
El edificio de la ampliación está concebido como una pieza intermedia que da servicio a las dos partes esenciales del conjunto museístico. Por un lado, el correspondiente al Palacio de Velarde, con el que se relacionará a distintos niveles mediante puentes creados al efecto. Por otro, el de la primera ampliación, cuyos recorridos expositivos se verán prolongados tanto en la planta baja, de modo que se garantiza el acceso al salón de actos desde esta parte del museo, como en la segunda, lo que facilita el acceso a la cafetería y al bar, ubicados en la última planta.
La estratégica situación del nuevo edificio, que se sitúa en medio de las dos partes expositivas del museo, asegura un fácil acceso y una eficaz división entre los usos públicos y privados de servicio.
El proyecto trata de recuperar, en la medida de lo posible, la fachada del palacio de Velarde, tapada en su día con el añadido que ahora será eliminado. Se trata de una ampliación anexa al palacio que fue realizada en los años sesenta y ocultó de manera casi íntegra la fachada norte. Esta será la parcela que ocupará el nuevo edificio, que liberará un espacio en el lateral del inmueble, generando una calle interior que permita, además de la incorporación de luz natural, poder apreciar las trazas del palacio tal y como fue concebido en su origen.
No se abrirán las antiguas ventanas, exceptuando las puertas que comunicarán la nueva ampliación con el interior del palacio, pero los vanos quedarán cegados con un paño macizo a caras interiores, de manera que quede perfectamente expresa la composición original. En este espacio interior se producirán las circulaciones principales, así como las conexiones con el resto del museo.



